
HOME > 物件詳細
当サイトは、お客様の個人情報を安全に送受信するためにSSL暗号化通信を利用しています。
| 取引種目 | 売買建物 | 問合せNo | 十和田001 | 取引態様 | 仲介 |
|---|---|---|---|---|---|
| コメント | 築12年一戸建 小学校、スーパー、公園等近辺に有 | ||||
| 所 在 地 | 青森県十和田市西十一番町 | ||||
| 価 格 | 2,450万円 | ||||
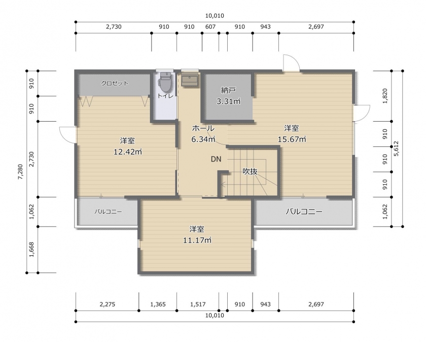
| 間 取 り | 1F 1LDK 2F 3部屋 トイレ有 | ||||
| 交 通 | |||||
| 土地面積 | 224.95u | 他、私道面積 | |
|---|---|---|---|
| 建物構造 | 木造亜鉛メッキ鋼板ぶき2階建 | 建物面積 | 延床面積141.8u |
| 間取内訳 | |||
| 接道状況 | 幅員4m以上道路接道 | ||
| 築年月日 | 築12年 | 現 況 | 住宅有 |
| 引渡し時期 | 要相談 | 駐 車 場 | 有 |
| 土地権利 | 所有権 | 地 目 | 宅地 |
| 都市計画 | その他 | 用途地域 | 第一種低層住居専用地域 |
| 建ペイ率(%) | 50 | 容積率(%) | 80 |
| 学区(小) | 北園小学校 | 学区(中) | 三本木中学校 |
| ガ ス | トイレ | ||
| 備 考 | 現在も居住者がいらっしゃる為、内見等はお問い合わせ頂いてからになります。 | ||
| ▼写真をクリックすると拡大表示します | ||||
|---|---|---|---|---|
![]() |
![]() |
|||
青森県八戸市吹上5丁目8-12
TEL:0178-20-9717 FAX:0178-20-9718
HP:https://www.jiria-home.com/
この物件情報は八戸の不動産ネット(https://www.bukken-omakase.com/)からの表示です。
Copyright (C) 青森・岩手・八戸の不動産ネット All Rights Reserved.