
HOME > 物件詳細
当サイトは、お客様の個人情報を安全に送受信するためにSSL暗号化通信を利用しています。
| 問合せNo | 種 別 | アパート | 取引態様 | 仲介 | |
|---|---|---|---|---|---|
| コメント | メゾンふるかわ。 1階。海安寺そば。 | ||||
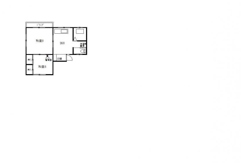
| 間取り | 2DK | 物件名 | |||
| 坪 数 | 所 在 地 | 八戸市湊町ホロキ長根21-8 | |||
| 占有面積 | 交 通 | ||||
| 間取り詳細 | 和6・和6・DK5 | ||||
| 月額賃料 | 3.5万円 | ||||
| 敷 金 | 賃料×1 | 共益費 | |||
| 礼 金 | 管理費 | ||||
| 仲介料 | 賃料+消費税 | 契 約 | |||
| 築年月日 | H2築 | 構 造 | 木造2階建 |
|---|---|---|---|
| 入居可能日 | 即(確認) | 部屋番号・ 物件の階数 |
1・2 階 |
| ベランダ | 保 険 | 要加入 | |
| 駐車場 | 1台 | ペット | 不可 |
| バ ス | 有 | トイレ | 水洗 |
| 学区(小) | 学区(中) | ||
| 設 備 | トイレ水洗・下駄箱・湯沸器・照明器具・洗濯機置場 | ||
| 備 考 | ・和6・和6・DK5 ・家賃保証契約要加入 |
||
| ▼写真をクリックすると拡大表示します | ||||
|---|---|---|---|---|
![]() |
||||
八戸市大字鮫町字上盲久保22-215
TEL:0178-33-7546 FAX:0178-33-7574
HP:http://athome-8nohe.com/
この物件情報は八戸の不動産ネット(https://www.bukken-omakase.com/)からの表示です。
Copyright (C) 青森・岩手・八戸の不動産ネット All Rights Reserved.